Login
Sign in to your account to access all features
Create an account
Welcome Aboard!
- Pink Miami
- Miami
- 1240 SW 12TH AVE

View all (3)



For Sale
Listed on March 18, 2026
1240 SW 12TH AVE
$950,000
0 Beds
0 Baths
7,020 sqft
0 Parkings
Lot size:
7,020 sqft
Annual Tax:
$10,313
Occupancy:
-
Year Built:
-
Property type:
Other
#MLS:
A11985662
Description
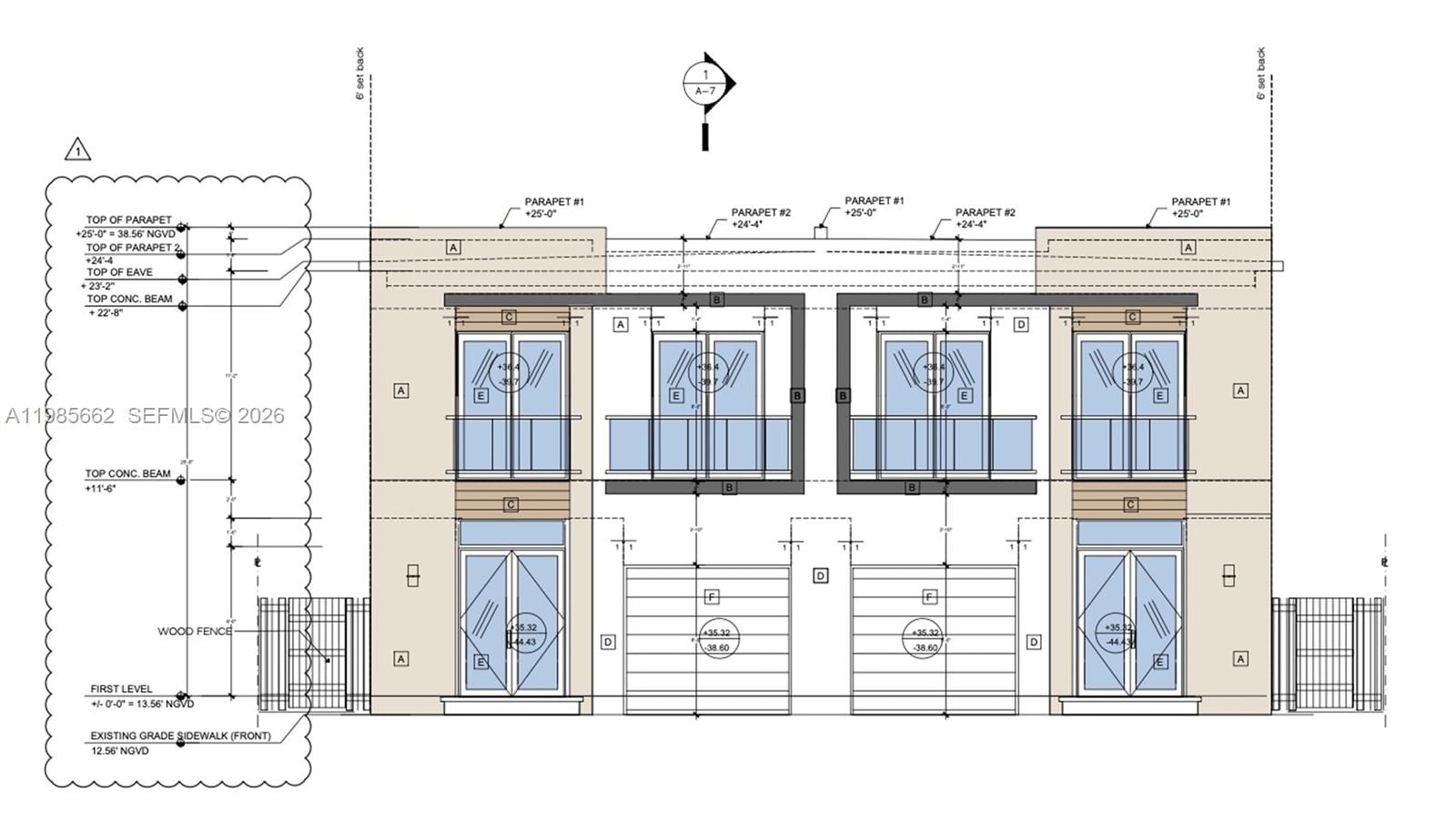
Prime Miami land sale with fully approved plans for a modern duplex. Shovel ready opportunity, buyer can close, pay impact fees, and begin construction immediately. Plans include a two story duplex totaling approximately 5,600 plus square feet, featuring spacious 3 bedroom units, private garages, open living areas, and second floor balconies. Designed for today’s market, ideal for resale or long term rental. Located in a rapidly evolving area surrounded by new construction, with easy access to Brickell, Downtown Miami, Coral Gables, and major highways.
Cornerstone Intl. Realty, LLC
Features & Details
Learn about the features and details of 1240 SW 12TH AVE
Property Details
- Property Type:Residential
- Living Area:-
- Year Built:Year Built
- Lot Size:7,020 sqft
- Stories:-
- Annual Tax:$10,313
- List Date:3/18/2026
- Updated:3/19/2026
- Last Checked:Recent
- MLS Number:#A11985662
- Brokerage:Cornerstone Intl. Realty, LLC
- Postal Code:33129
- Area:Miami-Dade County
- City:Miami
Additional Property Features
- Occupancy:Available
- List Price:$950,000
- Unit Number:-
- Construction:Construction
- Heating:Heating
- Fireplaces:-
- Garage:-
- Parking Type:No
- Pets Allowed:No
- Air Conditioning:No
- Elevator:No
- Locker:No
- Swimming Pool:No
- Patio:No
- Basement:No
- Den:No
- Central Vacuum:No
- Garage Type:No
Additional Listing Information
- Walk Score:–
- Property Manager:-
- Utilities Included:None
- Furnished:No
- Assessment Year:2025
- Assignment:No
- Extras Included:None
- Virtual Tour:View virtual tour
Inside
- Bedrooms & Baths:0 Bed, 0 Bath
- Ensuite:Yes
- Bathrooms:0
- Flooring:Mixed
Price history
Learn about the price history of 1240 SW 12TH AVE
Real estate trends
View trends of price in Miami over the last 12 months
Explore Miami-Dade County
Learn about the area around 1240 SW 12TH AVE
Similar listings
Shop homes for sale similar to 1240 SW 12TH AVE, Miami-Dade County
Listed 10 days ago
Listed 10 days ago
Listed 12 days ago
Similar Sold listings
Shop homes for sale similar to 1240 SW 12TH AVE, Miami-Dade County
Sold 2 months ago
Sold 2 months ago
150 SUNNY ISLES BLVD, Unit 1-1805
$987,500
$900,000
BoatSlip
3
beds
2
baths
2
parking
1489 sqft
Compass Florida, LLC
Sold 3 months ago
Sold 5 months ago
FAQs About 1240 SW 12TH AVE
There are bedrooms and bathrooms in this Other at 1240 SW 12TH AVE, MLS® A11985662.
Annual taxes for this home are $10,313 based on 2025 tax year reports.
Based on information from the Miami Association of REALTORS®. This information is for your personal, non-commercial use and may not be used for any purpose other than to identify prospective properties you may be interested in purchasing. Display of MLS data is usually deemed reliable but is NOT guaranteed accurate by the MLS. All properties are subject to prior sale or withdrawal. All information provided is deemed reliable but is not guaranteed accurate, and should be independently verified. Unless otherwise specified in writing, Broker/Agent has not and will not verify any information.
©2025 Miami Association of REALTORS® all rights reserved.
Watch Property
1240 SW 12TH AVE
1240 SW 12TH AVE












